Looking for Plagiarism-Free Answers for Your US, UK, Singapore, New Zealand, and Ireland College/University Assignments?
Talk to an Expert| Category | Assignment | Subject | Computer Science |
|---|---|---|---|
| University | Universiti Teknologi Malaysia (UTM) | Module Title | BQS562 Computer Aided Measurement & Estimating |
Demonstrare ability to use software application and tools to produce Bills of Quantities for construction project
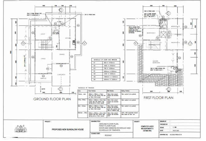
The drawing No. BQ5562/FINISHES/1-2 shows the dentall for the floor ceiling & wall finishes of new bungalow house
1. Take-off complete all necessary work related to
based on the principles in the Standard Method of Measurement (5MM2)
2. Prepare Bills of Quantities (BQ) accordingly.
3. Priced the Bills of Quantities zording to the latest rates including with all necessary profit & overhead allocation
All submissions must be in the form of
according to class.
Markes
10%
Strategion Date
Friday,
30 May 2025
Are You Looking for Answer of BQS562 Assignment
Order Non Plagiarized Assignment| No. | CHIEFS | PAGE | |
|---|---|---|---|
| LEARNING: | Very Excellent! | ||
| PRODUCT OF TIME: | |||
| PAGES of lighting colours in body area and muscles in BOSS | 1 | 1 | 1 |
| Places of movement on secondary levels: | 1 | 1 | 1 |
| Motion of anticipating touch on accessories not always placed in GAMES: | 1 | 1 | 1 |
| Disease training in identifying material | 1 | 1 | 1 |
| Sorting of drawings on secondary levels: | 1 | 1 | 1 |
| Mills of Quantities now proposed: | 1 | 1 | 1 |
| Quantities on constant-rate using an automatic process: | 1 | 1 | 1 |
| Sign up improving accuracy via machine passing and access. | 1 | 1 | 1 |
| Sign up track success and presentation capabilities obtained. | 1 | 1 | 1 |
| CONCEPT & PROCESS: | |||
| Constructive documentation on activity in the delivery experience and tasks. | 1 | 1 | 1 |
| Review time for improved time. | 1 | 1 | 1 |
Quantities are the ultimate percentage.


Buy Answer of This Assignment & Raise Your Grades
Order Non Plagiarized AssignmentStuck on your BQS562 Computer Aided Measurement & Estimating Assignment? Don't worry! Our Computer Science Assignment Help service is the best for you. If you need help with assignments, our expert PhD writers will provide you with original content. And yes, you will also get free assignment samples, which will give you a perfect idea of how to write a top-quality assignment. Don't worry about the deadline as we guarantee on-time delivery. Contact us now for high-quality and plagiarism-free work and boost your grades!
Hire Assignment Helper Today!
Let's Book Your Work with Our Expert and Get High-Quality Content