Looking for Plagiarism-Free Answers for Your US, UK, Singapore, New Zealand, and Ireland College/University Assignments?
Talk to an Expert| Category | Assignment | Subject | Management |
|---|---|---|---|
| University | Unitec Institute of Technology (Unitec) | Module Title | CONS5005TP Construction 1 Residential |
Weighting: 30%
Pass Threshold: 40%
LOI Identify geotechnical factors and substructures for a small building.
L02 Evaluate building types and structures for a small building. L04 Create technical sl<etches for a small building project.
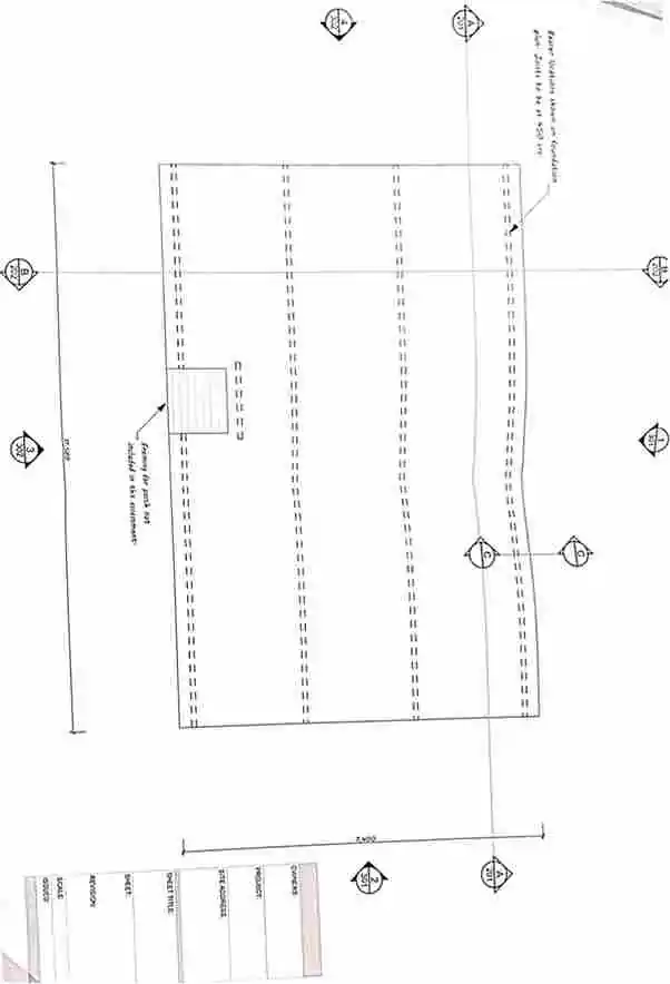
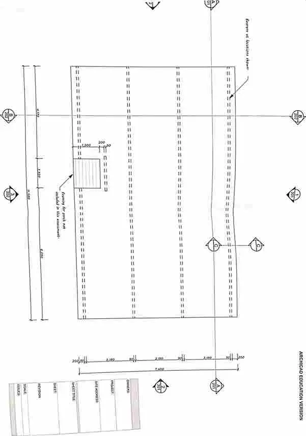
You have been provided with a set of design drawings for a small house by your boss, who owns a small construction company. You are required to analyse the floor, wall and roof loads, and complete calculations and specify structural member and fixings for a suspended timber subfloor on pile foundations.
Using NZS 3604, specify the most economical sizes and spacings for each of the required members. Include component sizes, spacings and material grades. Where necessary, calculate loaded dimensions to allow you to specify framing sizes. Where a timber design size is not widely available use nominated sizes instead.
Include information about any fixings required by NZS 3604, including spacings if applicable. Use NZS 3604 and B2/AS1 to specify durability treatments for all components.
Your design should include the following components:
Present your design using neat hand sketches. Sketches should be drawn to scale on the provided templates. Note all construction specifications on the relevant sl<etches. Notes should include material, size, grade, and spacing (as applicable). Include information about any required fixings. Construction elements should be dimensioned as appropriate. Notes and dimensions should be clear and legible. All sheets should have a simple title and sheet number.
The following drawings should be provided:
Additional Notes:
Note 1: This is a summative assessment. All summative assessments in this qualification are compulsory, unless expressly stated otherwise. If you do not submit this assessment, then you will receive a Did Not Complete (DNC) grade for the entire course.
Note 2: For information about late submission penalties, extension and assessment concession (ACS) applications, resubmissions, and how to raise concerns or complaints about academic decisions, see the Assessment section of the course Moodle page.
Please see the attached marking rubric for the criteria each sheet will be assessed on.
Using the calculation sheet below, calculate the subfloor framing and foundations for the practice example on Moodle. You will need to refer to the practice example plans, NZS 3604, and the Subfloor & Foundation Design Flowchart. This activity does not contribute to your final mark, but will help your understanding of the course.
| Loaded dimension: Focusin on the central bearer onl | |
| Loaded Dimension: | Span 1 + Span 2 2 |
| Spans:
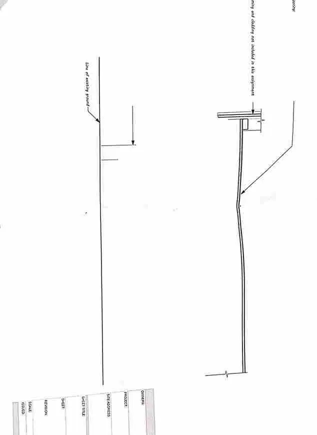
Note: The span ofthe joists is measured between the bearers |
Span 1= Span 2 = |
| Add the spans to the formula: | |
| Central bearer loaded dimension answer: | |





dsfsf
Hire Assignment Helper Today!
Let's Book Your Work with Our Expert and Get High-Quality Content
asasd