Assessment Brief
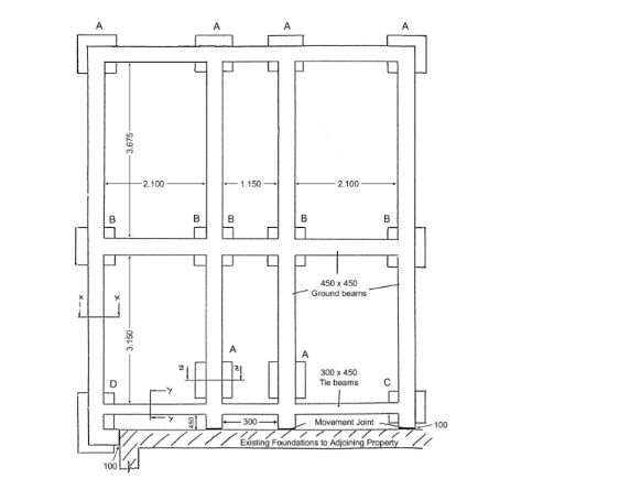
- Take off the pad foundations, beams and associated items from drawings shown below using NRM2 edition 1. Wherever the NRM states ‘for clarity each type of work may be measured and described separately’ (for example concrete work, formwork and reinforcement to foundations or beams) this shall be done. You should measure everything except excavating for trenches or pad foundations and brickwork.
- Produce a bill of quantities (BQ) from your taking-off as part of a standard tender document
- Price the items in your final BQ and produce a total cost estimate for the concrete work associated with the pad foundation and ground beams.
- Some of the above should give you a clue as to the extent of the effort required for your take off to be ‘transparent’ so that another surveyor could pick up your work and easily follow it and see where your dimensions come from. The above drawings/sketches were taken from the model answers description columns, there are many more, imagine how difficult it would be to follow someone else’s work without these sketches/explanations/sign posts. This take off needs more care taken with transparency than any that we have measured so far in class, because there are many more dimensions per item measured, therefore more detailed signposting is required so that someone else (in this case, me) can follow your work (remember if you make an error it will be easier for me to still allocate you some marks if I can understand how you got it wrong).
Transparency is very important because if you left the company that you work for and another surveyor took over your project, he should be able to easily understand your take off. It is also important to you because 10% of your marks are allocated for transparency, it is not unusual to add sketches/diagrams in the description column such as those above, which identify the spreads and also the incorrect 300 mm dimension on the drawing (although the drawing would eventually be corrected by the architect by issuing a revised drawing it is normal practice to refer to (and bundle) the actual drawings used in the take off.
- The structural engineer has not specified any details for the movement joints and will not be able to do so before the BQ is completed, therefore include a provisional sum in your take off to cover the movement joints.
Important additional information You can submit your work using cither word, excel or a handwritten and scanned pdf, do submit with similar programs or apps to word or excel (in the past some have proved difficult for the marker to read and in some case could not be opened).
Coursework recording:
There is a recording explaining the initial details of the coursework in the assessment folder on blackboard
When you have opened the file, click the CC tab (under the screen to the right) if you wish to view the captions (subtitles).
Assessment Brief and Criteria
You need to fulfil the brief and the assessment criteria below. At the end of this document, we have provided you a more detailed marking grid, which describes both the expectation for each criterion and how marks would be awarded based upon performance.






Criterion
Measurement – Layout: Weighting 10%
Measurement – Transparency: 5%
Measurement – Descriptions: 25%
Measurement – Codification: 10%
Measurement – Units of measurement: 10%
Measurement – Accuracy of the quantities: 20%
Standard Tender Document – Preparation of final BQ Project Estimate – Pricing of BQ: 10%